面膜是如何生產出來的
2022-07-05首先來了解一下面膜,什么是面膜?相信很多人都認識,顧名思義,面膜,敷在面上的膜。敷面膜有什么作用呢?其最基本的作用就是護膚,護膚中的基本功效有清潔、保濕、防曬、美白、祛斑、祛痘等等。一年四季,春夏秋冬,男女老少都又愛又恨的東西。
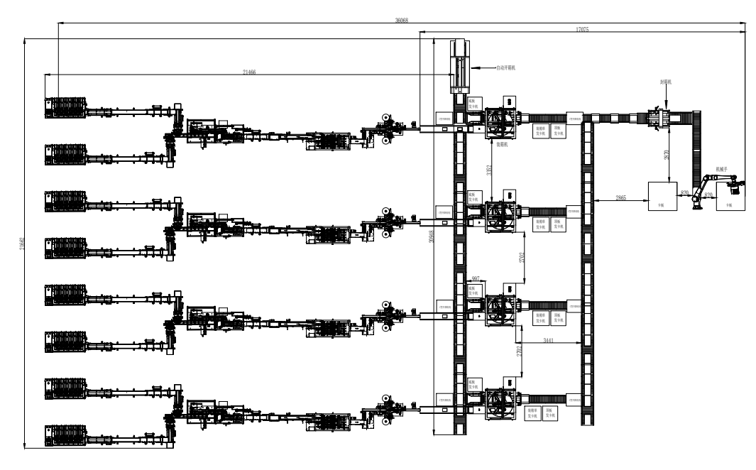
那在這里,或者你會想既然說的那么好的東西,那是怎樣做出了的呢?難做嗎?貴嗎?那下面看一下我整理出來的一張圖片,
面膜整線設備組合:
面膜機-爬坡傳送皮帶-稱重剔除機-點數分頁機-全自動裝盒機-盒稱重剔除機-三維煙包機
工藝流程:
人工放置面膜袋 → 自動取袋、下袋 → 自動開袋 → 自動填充 → 自動封口 → 單片稱重
↓
三維煙包← 單盒稱重 ← 自動裝盒 ← 自動放內襯← 面膜自動進料 ← 面膜點數分頁



如圖,簡單明了,按正規的生產流程,基本可以分成幾個步驟,幾款設備即可完成面膜的制作。
下面來說一下面膜制作的大概生產流程:
1.把裝好膜布的袋子進行消毒滅菌,把袋子里外和膜布進行消毒滅菌。等袋子膜布消毒滅菌完成后,人工放置面膜袋,用面膜灌裝機即可進行面膜液的灌料封口打碼。出來就是一片面膜的成品了。
2.灌裝完成出來的成品,稱重剔除一體機(片稱)會把少灌漏灌的面膜產品剔除出來,確保每一包產品的質量在規定的范圍內。
3.挑選過的面膜成品可以流入下一步的環節了,就是把一片片的面膜按產品要求包裝,進行點數整理和裝盒?;蛘哂霉と耸止c數再裝進面膜盒子里。
4.裝好的面膜盒成品,會進行稱重確認,并剔除不合格產品。
5.最后就進行一個面膜盒的外包裝,常規用到的就是包裹透明膜。完成最后的包裝環節即可進行銷售了。
這樣一個大致的面膜生產流程就完成了。其實很簡單吧,流程中部分設備可以人工代替,這樣對前期投資不大的客戶提供很好的參考。但是如果想節省人工,提高效率,還是建議選擇全自動面膜生產線,僅供參考,謝謝!如需要了解更多有關面膜生產線,可以聯系我們和力泰!
